Piso 2 dormitorios reformado íntegramente. Todo exterior, en Plaza de la Libertad

Galería fotos
€ 260.000
Referencia: 3365-00429
  • Tipo: Pisos
  • Operación Venta
  • Localización Municipio: Cádiz
  • Localización Población:Cadiz
  • Habitaciones Habitaciones: 2
  • Baños Baños: 1
  • Terraza Terraza:
  • Planta Planta:
  • Metros construidos Metros: 112m2
  • Año de construcción Año de construcción: 1888

Características

  • Aire acondicionado: no
  • Orientación: Norte::Oeste
  • Estado: Disponible

Detalles

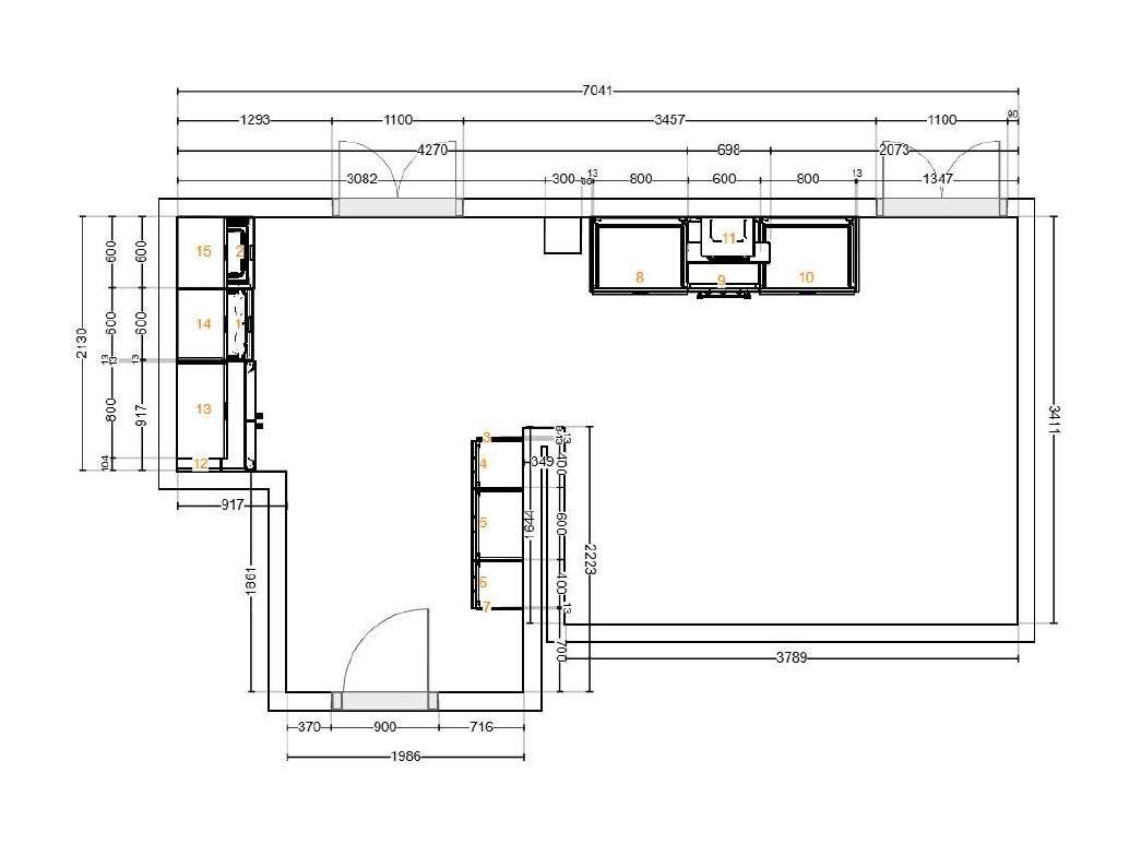
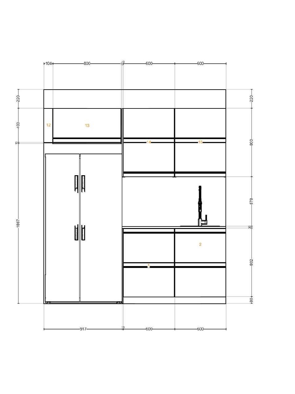
Las fotografías mostradas están realizadas por inteligencia artificial y no se corresponden al producto final que se presentará, que será de muchísima más calidad En breve se incorporarán a la publicación las fotografías reales del inmueble. Piso recién reformado integralmente de 112 m2 construidos y en total 127 m2 con ZZ.CC., con 2 Dormitorios, Cocina abierta, Salón comedor, Baño con placa de ducha y zona de planchado, lavandería o vestidor Si estas interesado/a, podrás visitarlo Al finalizar las obras a mediados de Septiembre, no dudes en contactarme para ampliar información. El plano mostrado puede estar sujeto a algunas variaciones Todo exterior y listo para reestrenar en un lugar privilegiado, en La Plaza de la Libertad, junto al mercado Central de Cádiz, que data de 1928 y fue proyectada por Juan Talavera. La vivienda en 2ª planta sin ascensor, de esquina, a calle Abreu, cuenta con 8 ventanales (5 orientados al Noreste y 3 orientados al Noroeste) y sus respectivos balcones que nos permiten disfrutar de las vistas y de la luminosidad tan especial que te ofrece la ubicación de este singular Se han mantenido, reformándolas, todas las contraventanas interiores de la vivienda para mantener esa sensación de calidez y de nostalgia que, unidas a las mejoras estéticas y constructivas que se han realizado nos permiten ofrecer una vivienda que se adapta perfectamente las exigencias del mercado actual. Cocina totalmente equipada, y a estrenar, abierta y dividida en 3 zonas: zona de Limpieza y almacenamiento, zona de preparación y almacenamiento, y zona de cocción, situada junto al comedor. Los dormitorios dobles, el principal con dos ventanales y armario empotrado y el otro con un ventanal exterior Baño con placa de ducha y un anexo con zona de lavandería planchado o posible vestidor Todo a estrenar, actualmente en fase de fin de la reforma La finca no cuenta con ascensor, pero es extremadamente tranquila y el lugar es privilegiado, ya que se encuentra a 10 min de casi todo lo que te puede enamorar de esta ciudad P.V.P: 260.000 ? A disposición del cliente documento F.I.A. En cumplimiento del decreto de la Junta de Andalucía 218/2005 del 11 de Octubre, se le informa al cliente que los gastos notariales, registrales, ITP, honorarios de la agencia y otros gastos inherentes a la compra-venta no están incluidos en el precio. Zonas de interés: Playa de La Caleta 700m. 10 min. Gran Teatro Falla 650m. 9 min. Hospital de la Salud (Privado) 350 m. 5 min. Ayuntamiento 650m. 8 min. Taberna Casa Manteca 500m. 7 min. Taberna Almarcén 98m. 1 min Parking Cádiz 250m. 4 min. Parking Plaza San Antonio 600 m. 8 min. Plaza del Mentidero 800 m. 11 min. Restaurante Balandro 850 m. 12 min. Real Tenis Club de Cádiz 800m. 11 min.