Características
- Aire acondicionado: si
- Estado: Disponible
Detalles
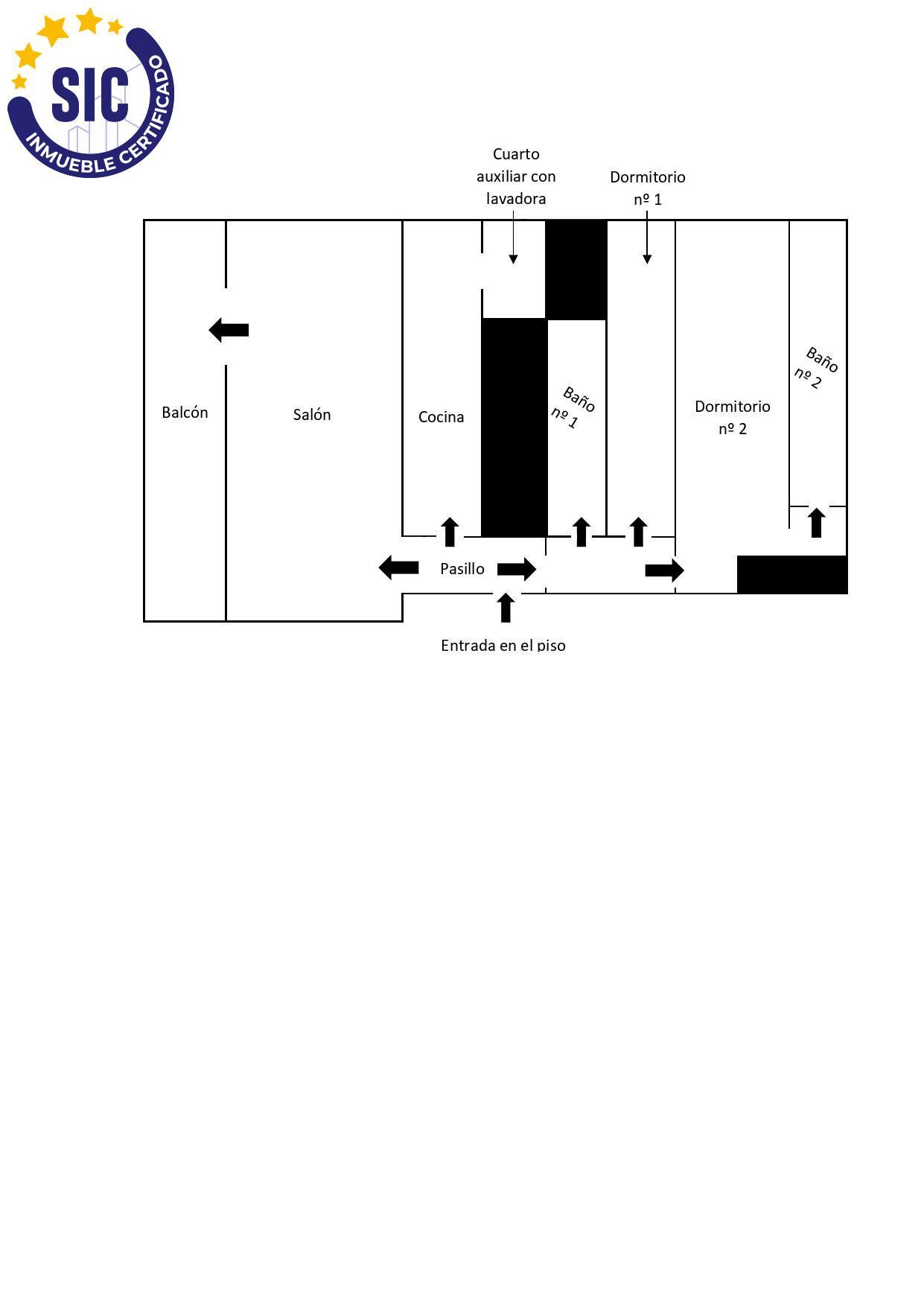
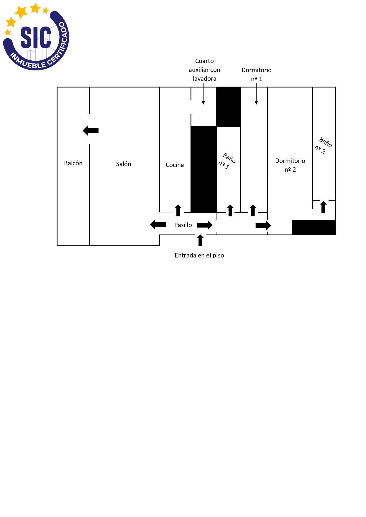
Piso moderno y acogedor en un edificio de lujo en el barrio de Malilla, pertinente al distrito de Quatre Carreres, uno de los barrios más dinámicos, modernos y crecientes de Valencia capital. El edificio se encuentra a 15 minutos caminando de la estación de tren ?La Fuente de San Luís?, con zonas comunes, carril bici, buena comunicación de autobús, bares y restaurantes de alta calidad y todos los servicios a tu alcance, al lado de los parques Malilla y Azagador del Morro, con entretenimientos para los niños y adultos. El edificio tiene su propio patio vallado, con decoraciones y pequeños árboles y plantas, servicio de seguridad y conserjería, sala de reuniones, y terraza cerrada con banquillos y tumbones para coger el sol, piscina y maravillosas vistas hacia la ciudad y sus afueras. El piso se encuentra en la tercera planta, cuenta con 103,49 m 2 construidos e incluye un pasillo grande, salón, balcón abierto con magníficas vistas hacia las zonas naturales, ciudad de Valencia y sus afueras, 2 dormitorios (uno más pequeño y otro muy grande, con un cuarto de baño individual), cocina independiente, un cuarto auxiliar con la lavadora ubicada dentro y 2 cuartos de baño en total. Ambos dormitorios tienen ventanas panorámicas con las vistas muy bonitas hacia el parque, la ciudad, la piscina y el patio interior verde y decorado del edificio de vecindad. Todas las ventanas están dotadas de lámina reflectante. El suelo laminado belga. La cama y otros muebles montados a mano, de madera de mango y roble. El piso cuenta con el propio sistema integrado de seguridad y vigilancia, detectores de humo, fuego y movimiento, todo manejable a distancia a través de la aplicación especializada, con un servidor individual protegido contra el hakeo.
