Casa de Pueblo en Alberic: 751 m², 6 Hab, Gran Patio y Antigua Cambra de la Seda

Galería fotos
€ 287.000
Referencia: MDolores-101
  • Tipo: Pisos
  • Operación Venta
  • Localización Municipio: Alberic
  • Localización Población:Alberic
  • Habitaciones Habitaciones: 6
  • Baños Baños: 2
  • Terraza Terraza:
  • Metros construidos Metros: 751m2
  • Año de construcción Año de construcción: 1888

Características

  • Aire acondicionado: no
  • Orientación: Este::Oeste
  • Estado: Disponible

Detalles

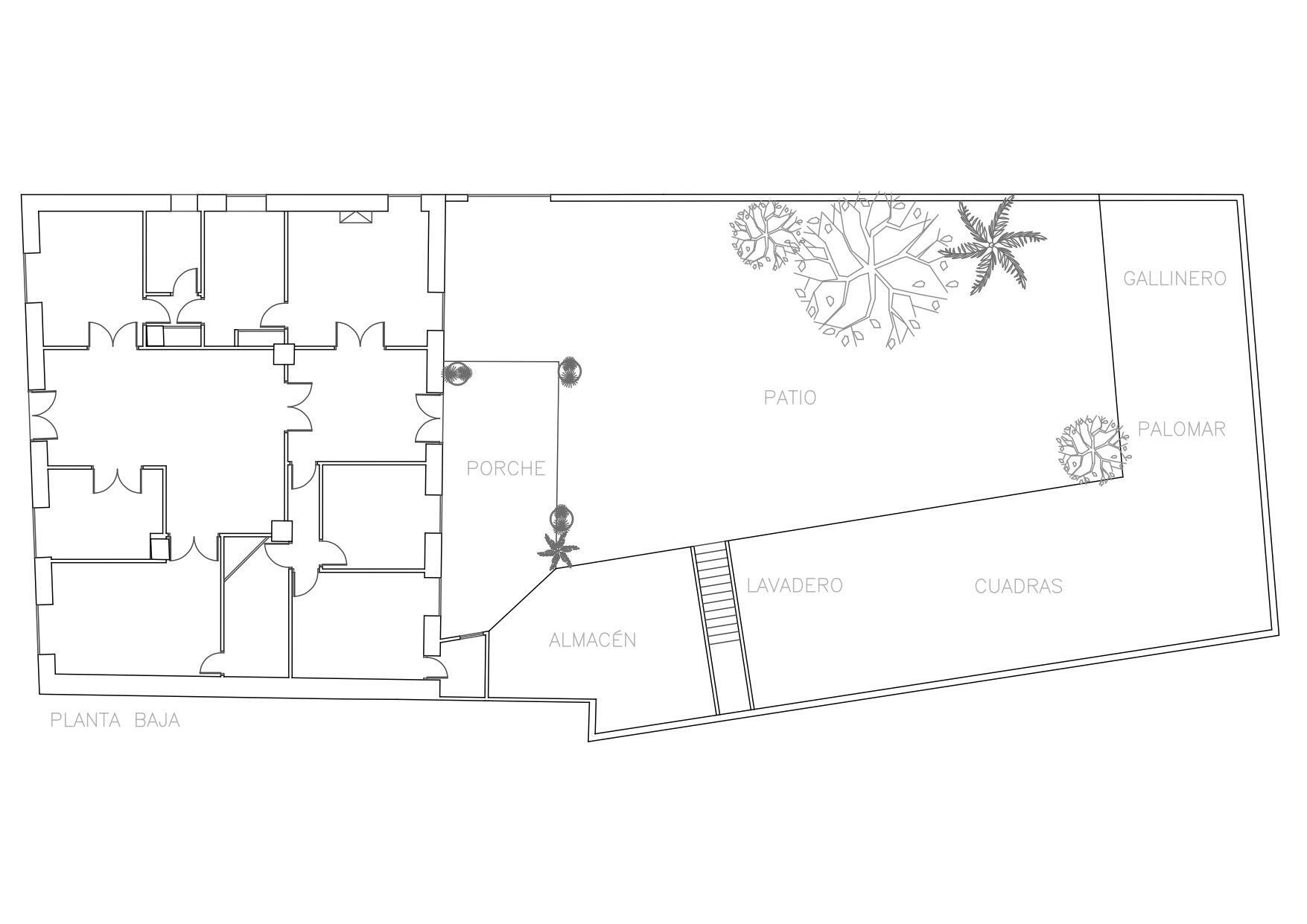
Presentamos una pieza arquitectónica única de 1888 en el corazón de Alberic. Una casa de pueblo con 751 m² construidos sobre una generosa parcela de 566 m², que conserva el encanto de las vigas vistas y suelos antiguos, ofreciendo un lienzo infinito para quienes buscan rehabilitar una propiedad con historia y carácter. Detalles Clave de la Vivienda - Superficie: 751 m² construidos / 566 m² de parcela. - Distribución: 6 habitaciones, 2 baños, 3 salones y cocina independiente. - Exteriores: Gran patio central con árboles, zona de antiguo establo y lavadero. - Estado: Para reformar (Tejado en buen estado, suministros de luz y agua de alta). - Orientación: Noroeste en fachada y Sureste en el patio (Sol de mañana y mediodía, ideal para la vida exterior). - Extras: Entrada para vehículos al patio y posibilidad de adquirir parcela anexa edificable de 1.500 m². Recorrido: - El acceso se realiza a través de unas imponentes portadas clásicas de pueblo que nos dan la bienvenida a un majestuoso salón-distribuidor. A la izquierda, encontramos una habitación, un baño completo, la cocina y un acogedor salón con chimenea original. A la derecha del distribuidor, se sitúan dos amplias habitaciones dobles. Continuando el eje central, accedemos a un segundo gran salón que conecta visualmente con la zona de noche (3 habitaciones, una de ellas en suite) y con el corazón de la casa: el patio. - Al cruzar el umbral hacia el exterior, nos recibe un amplio porche con potencial para ser techado. El gran patio central, salpicado de árboles, es el eje sobre el que gira la propiedad. En este espacio encontramos la entrada para vehículos, una práctica despensa, el antiguo lavadero y la zona de establos. Al fondo, un auténtico gallinero y palomar nos recuerdan el origen agrícola de la finca, justo antes de dar paso al terreno anexo de 1.500 m². - A través de una escalera desde el patio, subimos a la planta superior. Aquí se divide en dos mundos: la zona diáfana sobre los antiguos establos y la impresionante "Zona de la Seda". Esta última, situada sobre la vivienda principal, destaca por sus techos de gran altura, siendo el lugar donde históricamente se cultivaban los gusanos de seda; un espacio con un volumen y una luz espectaculares para proyectar estancias diáfanas de diseño. Ubicada estratégicamente justo detrás del Ayuntamiento, la vivienda se encuentra en la zona más tranquila del casco histórico. - Transporte: A tan solo 650 metros de la estación de Metro (Línea 1), conectando directamente con Valencia capital.