Dúplex en venta en calle de Tribulete 18, Madrid

Galería fotos
€ 200.000
Referencia: 18TBLT
  • Tipo: Pisos
  • Operación Venta
  • Localización Municipio: Madrid
  • Localización Población:Madrid
  • Habitaciones Habitaciones: 2
  • Baños Baños: 2
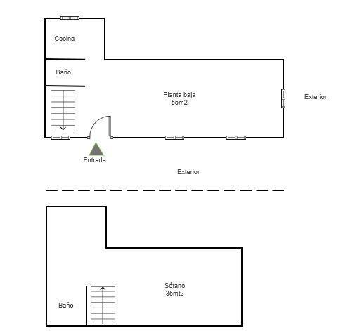
  • Metros construidos Metros: 80m2
  • Año de construcción Año de construcción: 1947

Características

  • Aire acondicionado: no
  • Orientación: Sur::Oeste
  • Estado: Disponible

Detalles

Esta espectacular vivienda en esquina, distribuida en dos plantas, es la oportunidad perfecta para emprendedores audaces y visionarios. Con techos altos y una estructura abierta que invita a pensar en grande, este espacio derrocha carácter y personalidad, listo para transformarse en el centro de algo extraordinario. Ideal para negocios innovadores, estudios de arte o viviendas tipo loft de estilo industrial. Potencial en Bruto: El espacio requiere una reforma integral, lo que significa que cada detalle será tuyo para definir. Aprovecha la amplitud y luminosidad del lugar para crear un entorno impactante que hable de estilo, funcionalidad y vanguardia. La estructura en dos plantas ofrece flexibilidad y carácter, lista para convertirse en un proyecto único y rompedor en pleno corazón de Lavapiés. En la actualidad, le llegan a llamar: Coolest in the World. Lo más destacado del barrio: La gente. El comercio minorista que solo esta aquí. La Plaza Lavapiés. La Corrala del Sombrerete. Las Escuelas Pías de San Fernando, hoy es sede de la UNED. Es muy popular su biblioteca. Lavapiés es un barrio de la ciudad de Madrid, ubicado dentro del amplio barrio de Embajadores, en el distrito Centro de la capital. Hay documentos sobre la existencia de habitantes en lo que hoy es el barrio, basados en los documentos del archivo del Ayuntamiento de Madrid, donde informan que el origen del barrio de Lavapiés estaría en los asentamientos comerciales de extramuros, de finales del siglo XV, relacionados con el camino real de Toledo y el camino de Atocha, y la existencia del antiguo matadero en lo que hoy es El Rastro. El Cine Doré es un edificio modernista situado en el inicio de la calle Santa Isabel. Construido en 1923, hoy acoge las proyecciones de la Filmoteca Nacional. En la misma calle, más abajo, está el Convento de Santa Isabel, de Agustinas Recoletas. Su origen ser remonta a los tiempos de Felipe II y el diseño que se conserva se debe a Juan Gómez de Mora. Su interior contiene gran cantidad de obras de arte de los siglos XVII y XVIII. Transporte: Mejor ve caminando o en bicicleta. Si no, Metro L3 en Plaza Lavapiés, Renfe en Embajadores junto con L3 y L5 de Metro, Tirso de Molina L1 de Metro, Atocha estación - AVE, Renfe, Metro L1. BUS M1 - Sol/Sevilla/Embajadores.